
SITE SELECTION AND THE STEPS INVOLVED When selecting a new site, for an outdoor centre or an existing building for...
Your Partner in Real Estate Delivery
RED is a specialist real estate consultancy providing outsourced Real Estate Director (RED) services to organisations that do not have this expertise in-house. We deliver
strategic advice on operational real estate and support the execution of tailored strategies to align with each client’s business objectives.
Experts in Padel Development
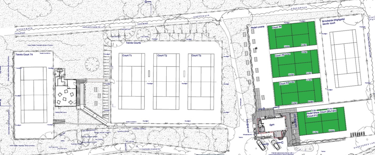
RED brings a unique expertise to the development of padel centres in the UK. We help create world class environments.
Our expertise spans all traditional real estate sectors—further details can be found on our Services page.
Our portfolio management service ensures your real estate assets are fully aligned with your long-term business strategy and operational needs.
From concept through to completion, we provide expert development management, and delivery support for new building developments.
Whether expanding, relocating, or consolidating your premises, we manage the process seamlessly to reduce disruption and deliver the right solution for your business.
RED developed and managed a cost-saving real estate strategy for national law firm Lyons Davidson, reducing surplus office space, negotiating with landlords, and overseeing sales and lettings to mitigate financial liabilities.
RED acted in an agency capacity for Goonvean acquiring an 86,500 sq ft industrial unit allowing the client to consolidate three occupational units under a single roof. This move drove operational and overhead efficiencies in the business.
RED acts as outsourced real estate director for Padeltastic, the company behind the Smash Padel brand, managing site selection, feasibility, lease negotiations and development of new padel centers across the UK.
RED partnered with Elonex Digital Media to deliver over 50 digital advertising screens across Bannatyne Gyms throughout the UK. From negotiating new terms to managing a complex rollout programme, RED ensured seamless installation across 30+ properties, completed on time and on budget.














We provide independent, director-level real estate expertise without the overhead of a large in-house team. Our clients don’t get lost in layers of staff — instead, they gain direct access to specialist advice and hands-on delivery tailored to their business needs.
With R.E.D. you benefit from:
Independent Perspective – clear, unbiased advice focused solely on your objectives.
Specialist Expertise – decades of experience in real estate strategy and delivery.
Direct Access – work with decision-makers, not hidden behind large teams.
Tailored Solutions – strategies aligned to your business sector and goals.
Full-Service Delivery – from strategy to execution, we manage the entire process.
At RED we strive to work in partnership with our clients to create enduring and value enhancing relationships. Real estate is a significant items in any company’s balance sheet and a trusted advisor relationship is key to good decision making. RED comes with a breadth of client-side experience, from asset and development management to consulting on acquisitions, disposals and the roll out of new sites for start-ups. We devise and deliver on real estate strategies across multiple sectors, keeping our clients and their ambitions at the forefront of our advice.
PATRICK NEVILLE
MANAGING DIRECTOR, R E DIREECTOR LIMITED
RED provide Smash Padel an excellent and professional end to end service, supporting our growth of padel centres across the UK. RED source sites, provides feasibility analysis, negotiates our leases, manages our planning applications and deliver the developments through to completion. We have opened 5 sites and have plans for many more. RED is crucial element in the success of these plans.
RED and specifically their managing director Partick Neville have provided us with asset management services for over three years. Patrick delivers knowledgeable and experienced support with a clear view on the strategic plan for our property portfolio. He has a strong network across the real estate industry, helping him to deliver on our strategic objectives, with a wide range of skills across sales, acquisitions, maintenance and dilapidations. He is also genuine and a great person to work with. Highly recommended.
I strongly believe that if a business is to be run successfully you need to find professional advisors who can manage the process of relocation whist allowing the business to run seamlessly. This is what we got with RED. The advised us on the relocation of our business from Cirencester to Swindon, manged he development and planning process, and after we settled in, asset managed the site assisting with lettings refurbishment and green energy projects.
RED are my in house property department whom I trust implicitly to look after my companies real estate interests
The leadership driving our tailored real estate solutions.

SITE SELECTION AND THE STEPS INVOLVED When selecting a new site, for an outdoor centre or an existing building for...

In the first part of this series, I suggested that Padel operators are forced to become real estate developers. Getting...
RED is a niche real estate consultancy with an absolute focus on advising occupiers and a market leading expertise in the development of padel. Choosing RED as your trusted advisor will guarantee that you have experienced director level representation. As a small company, without layers of corporate red tape or board approvals we’re able to stay agile and responsive.
We will support your business in navigating the challenges whilst positioning you to capitalize on opportunities
© 2025 RED – Real Estate Director